rénovation/extension d’un appartement à Paris (75)
maîtrise d’ouvrage: privée
maîtrise d’œuvre: DONNET TRESSE architectes (DTLAB)
/ projets A et B – études: 2006
/ projet C – études, pc, dce: 2012
/ projet annulé en 2013 suite à la demande démesurée de l’Inspection Générale des Carrières: des consolidations souterraines obligatoires, pour une petite extension de 10 m²
–
existant
Créée à partir d’une travée de la maison voisine en 1897, puis remaniée et surélevée en 1926, cette maison de ville a ensuite été divisée en 3 appartements. Les propriétaires du duplex installé aux 2 derniers étages, ont tout refait lors de leur emménagement. Néanmoins, s’y sentant de plus en plus à l’étroit, ils souhaitaient s’agrandir en récupérant les surfaces non utilisées: la petite terrasse du r+3, ainsi que les combles.

existant / r+2

existant / r+3

existant / façade et axonométrie côté villa de la Tour
–
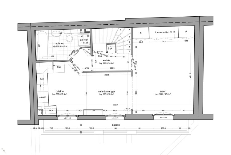
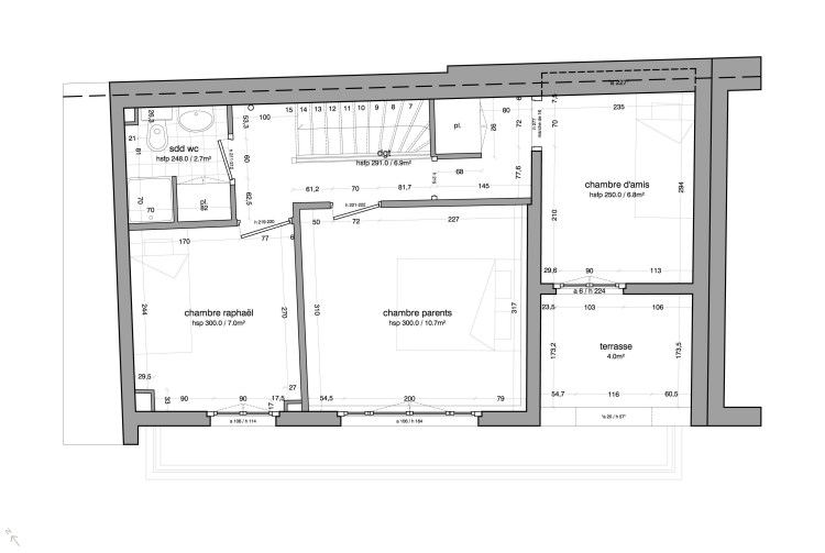
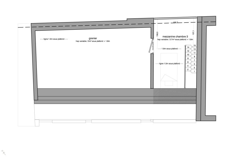
projet A (2006)
– le niveau bas est légèrement modifié afin d’optimiser circulations et rangements,
– en haut, un dressing est créé sur le palier,
– la chambre 3 est dotée d’une mezzanine,
– un grenier est également créé sous le toit.

projet A / r+2

projet A / r+3

projet A / r+4

projet A / salle à manger (vers salon)

projet A / salon (vers salle à manger et cuisine)
–
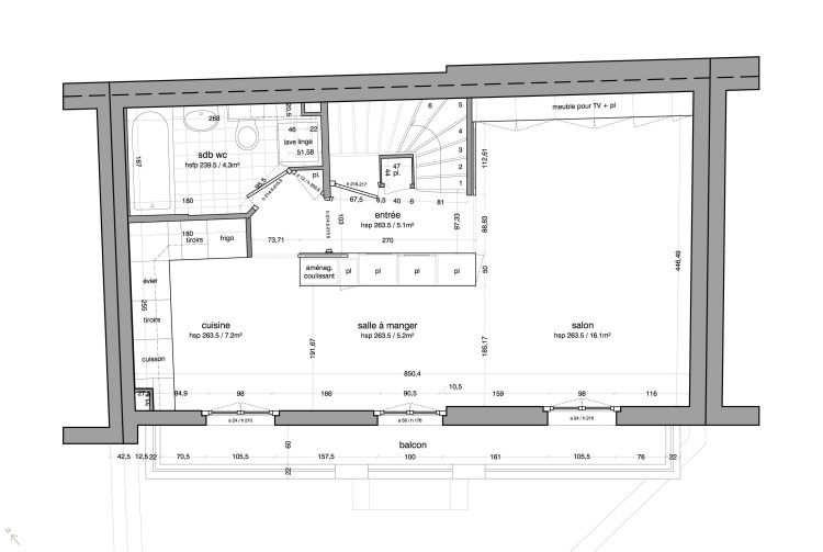
projet B (2006)
– les zones nuit et jour sont inversées:
les chambres sont dorénavant au niveau bas (tout comme la salle de bains existante),
afin de dégager un beau volume au r+3 pour le séjour et la cuisine,
– une chambre avec salle de douche, toilettes et dressing est installée au r+4.

projet B / r+2

projet B / r+3

projet B / r+4

projet B / séjour (vers salle à manger – cuisine)

projet B / salle à manger – cuisine (vers salon)
–
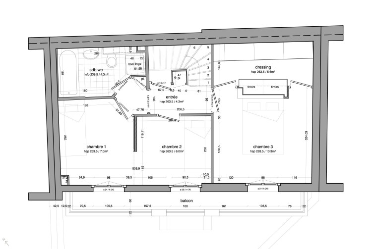
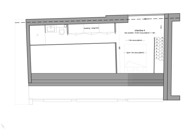
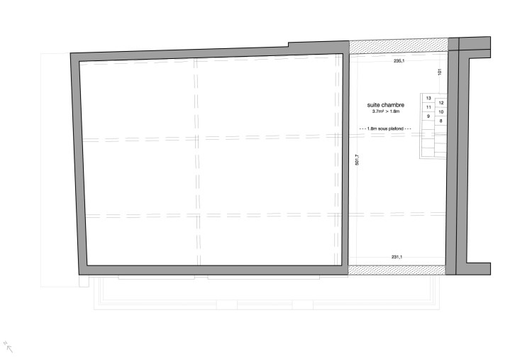
projet C (2012)
Peu de temps après la présentation des projets A et B, les appartements du r+1 puis du rez-de-chaussée sont successivement mis en vente. Nos clients décident de les acheter et de les louer, repoussant ainsi les travaux prévus dans le duplex.
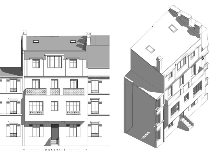
Si la réorganisation globale du bâtiment est remise à plus tard, une version allégée du projet A est néanmoins envisagée en 2012, histoire tout de même de s’agrandir par le haut (le r+2 reste inchangé). Il s’agit donc de démolir l’ancienne terrasse du r+3 et son rajout assez quelconques, au profit d’une chambre avec mezzanine qui occuperait ce volume délaissé. La nouvelle chambre serait dotée de la même fenêtre que celle du troisième étage de gauche, ce qui permettrait à la fois de gommer ce face à face de pignons peu esthétique, et de rééquilibrer la façade. L’actuelle dent creuse serait donc effacée, la symétrie rétablie.
Par ailleurs, le ravalement de façade ainsi que le remplacement de l’actuelle toiture en tuiles plates marron (brisis) et en tuiles mécaniques (terrasson), par une couverture en zinc, redonneraient à cette maison de ville un nouveau souffle.
Le projet est finalement annulé, avant même de savoir si le PC était obtenu, suite à la demande démesurée de l’Inspection Générale des Carrières: des consolidations souterraines obligatoires (piliers maçonnés ou bétonnés dans la hauteur de la carrière ou des injections de coulis dans la carrière sous le projet et ses abords), pour une petite extension de 10 m².

projet C / r+3

projet C / r+4

projet C / façade et axonométrie côté villa de la Tour

à droite: photo de l’existant, à gauche: photomontage du projet C