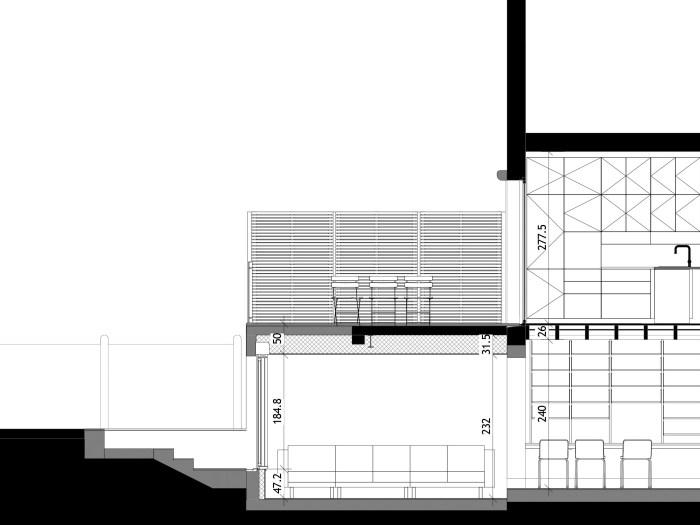
construction d’une maison individuelle à St-Nazaire (44) maîtrise d’ouvrage: privéemaîtrise d’œuvre: DTLAB architectes / études, pc, dce: 2021-2022, chantier: 2023/ surface: 250 m² – – – – – – – – –
Auteur : caroline
DT136 DTV1
maison et bureaux à St-Nazaire (44) maîtrise d’ouvrage: privéemaîtrise d’œuvre: DTLAB architectes / études, pc, dce: 2020/ surface: 215 m² (maison) + 82 m² (bureaux) – – – – – – – – – – –
DSN
à propos de St-Nazaire / document imprimé ! / débats en ateliers: 2018 – 2019 / impression du document: juin 2019 / 10 000 exemplaires contributeurs: – réflexions et propositions: les 200 adhérents de l’association Demain St-Nazaire – compilation des réflexions et propositions: conseil d’administration […]
ALC
amicale laïque de l’école Pierre et Marie Curie à St-Nazaire / blog, mascottes, mots, affiches: 2016 – 2019 –
DT176 VA
rénovation/extension d’une maison à St-Nazaire (44) maîtrise d’ouvrage: privée maîtrise d’œuvre: DONNET TRESSE architectes (DTLAB) / études, pc, dce: 2016-2018 / surface taxable: 100 m² –
DT155 ZORBA
transformation d’un navire sablier en habitation à Bordeaux (33) maîtrise d’ouvrage: privée maîtrise d’œuvre: DONNET TRESSE architectes (DTLAB) expertise: J. LECAILLON bet ingénierie navale: CT ARCO / études: 2015, 2018 / aménagement cale: 140 m² –
DT224 ECC
extension d’une exploitation agricole à St-Marc (44) maîtrise d’ouvrage: SCEA ENTRE CHÈVRES ET CHOUX maîtrise d’œuvre: DONNET TRESSE architectes (DTLAB) / études, pc: 2018 / 1 250 m² / 200 000 € (en autoconstruction) Entre chèvres et choux, c’est en 2018: – du maraîchage biologique […]
DT213 MP
rénovation du rdc d’une maison à La Baule (44) maîtrise d’ouvrage: privée maîtrise d’œuvre: DONNET TRESSE architectes (DTLAB) / études: 2017-2018 / rdc: 70 m² –
DT191 SPN
mini extension d’une maison à St-Nazaire (44) maîtrise d’ouvrage: privée maîtrise d’œuvre: DONNET TRESSE architectes (DTLAB) / études: 2017-2018 –
DT201 MAC
rénovation/extension d’une maison à Clisson (44) maîtrise d’ouvrage: privée maîtrise d’œuvre: DONNET TRESSE architectes (DTLAB) / études, pc, dce: 2017 / surface taxable: 268 m² (projet 1), 240 m² (projet 2) – – projet 1 – projet 2
DT163 NGU
construction d’une maison à St-Denis (93) maîtrise d’ouvrage: privée maîtrise d’œuvre: DONNET TRESSE architectes (DTLAB) / études, pc: 2016-2017 / projet suspendu / 180 m² –

