construction d’une maison à St-Denis (93)
maîtrise d’ouvrage: privée
maîtrise d’œuvre: DONNET TRESSE architectes (DTLAB)
/ études, pc: 2016-2017
/ projet suspendu
/ 180 m²
–

vue depuis l’angle des rues Chaudron et Jamin

axonométrie nord-ouest

vue depuis la rue Jamin

axonométrie sud-ouest

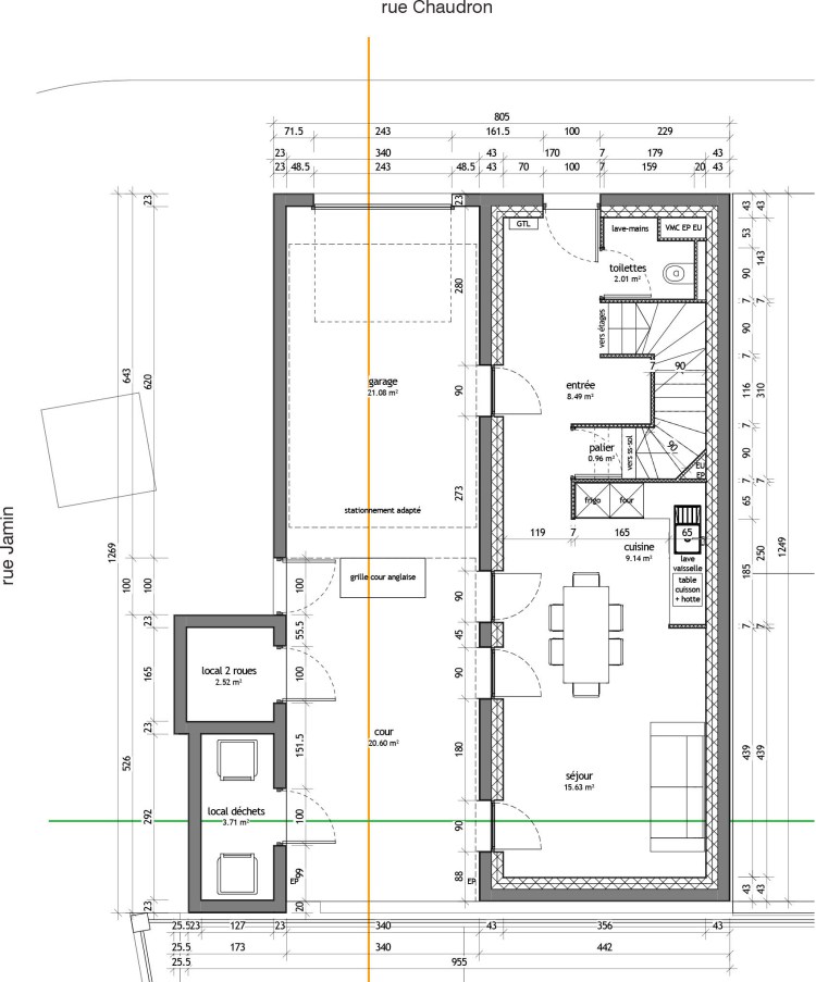
plan rdc

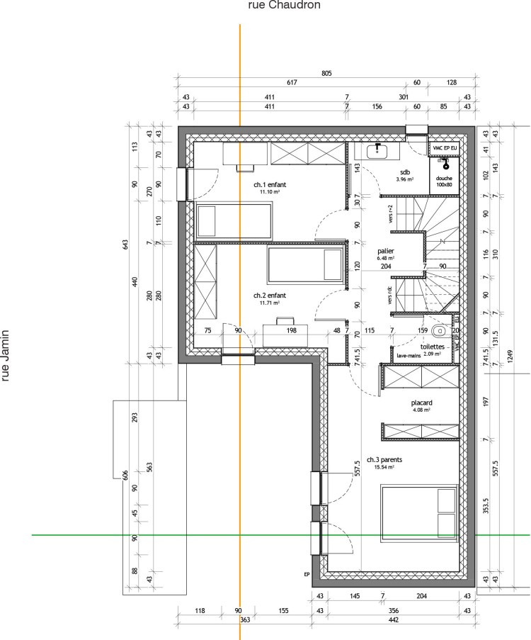
plan r+1

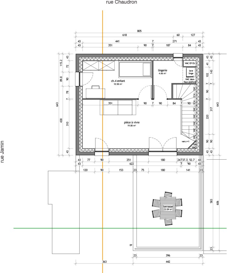
plan r+2

façade nord rue Chaudron

façade ouest rue Jamin

coupe longitudinale

façade sud

coupe transversale

pignon est

vue cour

vue séjour et cuisine (rdc)

vue pièce à vivre (r+2)

vue terrasse (r+2)