DT201 MAC

architecture / urbanisme, logements

rénovation/extension d’une maison à Clisson (44)

maîtrise d’ouvrage: privée
maîtrise d’œuvre: DONNET TRESSE architectes (DTLAB)

/ études, pc, dce: 2017
/ surface taxable: 268 m² (projet 1), 240 m² (projet 2)

état initial – plan masse (les bâtiments à démolir sont hachurés)

état initial – depuis la route de Bournigal (côté école Sainte Famille)

état initial – depuis la route de Bournigal (côté école Sainte Famille)

état initial – jardin (depuis le premier étage de la maison principale)

état initial – axonométrie côté nord (route de Bournigal)

état initial – axonométrie côté sud (jardin)

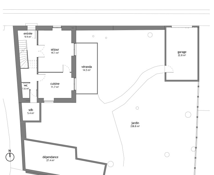
état initial – plan rdc

état initial – plan étage

projet 1

projet 1 – plan masse

projet 1 – depuis la route de Bournigal (côté école Sainte Famille)

projet 1 – depuis la route de Bournigal (côté porte Palzaize)

projet 1 – axonométrie côté nord (route de Bournigal)

projet 1 – axonométrie côté sud (jardin)

projet 1 – plan rdc

projet 1 – plan étage

projet 1 – axonométrie rdc

projet 1 – axonométrie étage

projet 1 – vue jardin

projet 1 – vue salon

projet 1 – vue mezzanine

projet 2

projet 2 – plan masse

projet 2 – depuis la route de Bournigal (côté école Sainte Famille)

projet 2 – depuis la route de Bournigal (côté porte Palzaize)

projet 2 – axonométrie côté nord (route de Bournigal)

projet 2 – axonométrie côté sud (jardin)

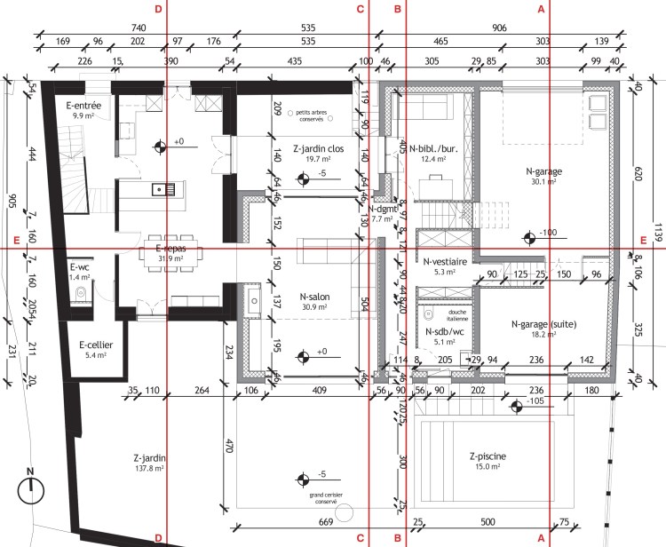
projet 2 – plan rdc

projet 2 – plan étage

projet 2 – axonométrie rdc

projet 2 – axonométrie étage

projet 2 – vue jardin

projet 2 – vue salle à manger, séjour

projet 2 – vue jardin clos