transformation d’un navire sablier en habitation à Bordeaux (33)
maîtrise d’ouvrage: privée
maîtrise d’œuvre: DONNET TRESSE architectes (DTLAB)
expertise: J. LECAILLON
bet ingénierie navale: CT ARCO
/ études: 2015, 2018
/ aménagement cale: 140 m²
–

EXISTANT: axonométrie poupe/tribord

PROJET: axonométrie poupe/tribord

EXISTANT + PROJET: élévation tribord

EXISTANT + PROJET: coupe longitudinale L1 babord

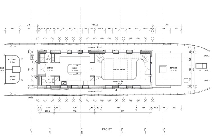
PROJET: plan niveau pont

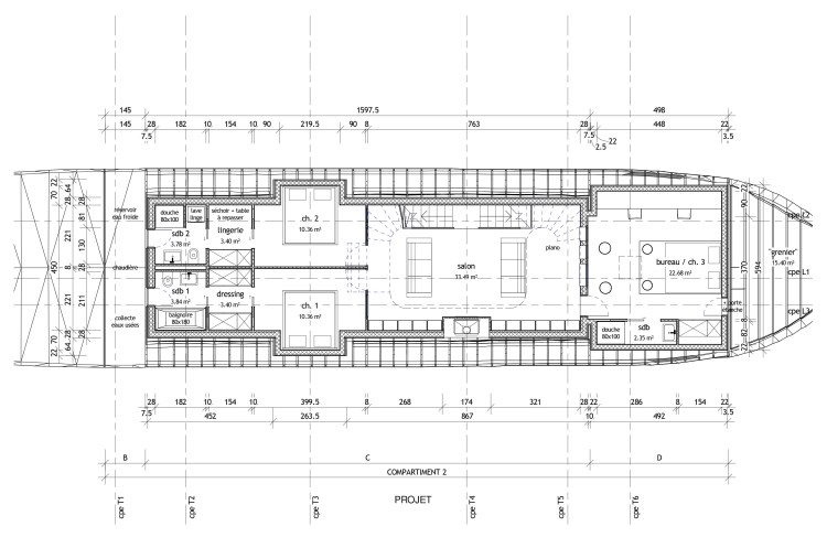
PROJET: plan niveau flottaison

PROJET: coupes longitudinales L2 babord L3 tribord

PROJET: coupes transversales T1 T2 T3 T4 T5 T6

PROJET: niveau pont – coursive tribord

PROJET: niveau pont – coursive babord

PROJET: niveau pont – terrasse

PROJET: niveau pont – repas

PROJET: niveau pont – repas

PROJET: niveau pont – repas

PROJET: niveau pont – coursive intérieure

PROJET: niveau pont – coursive intérieure

PROJET: niveau flottaison – salon

PROJET: niveau flottaison – salon

PROJET: niveau flottaison – salon

PROJET: niveau flottaison – salon

PROJET: niveau flottaison – chambre 1

PROJET: niveau flottaison – chambre 2

PROJET: niveau flottaison – chambre 3

PROJET: niveau flottaison – chambre 3