rénovation/extension d’une maison à St-Nazaire (44)
maîtrise d’ouvrage: privée
maîtrise d’œuvre: DONNET TRESSE architectes (DTLAB)
/ études, pc, dce: 2016-2018
/ surface taxable: 100 m²
–

rue Pierre Mendès France: photographie de l’état initial à gauche, projet à droite

rue Denis Diderot: photographie de l’état initial à gauche, projet à droite

état existant – coupe longitudinale

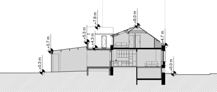
projet – coupe longitudinale

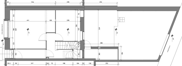
état initial – plan rdc

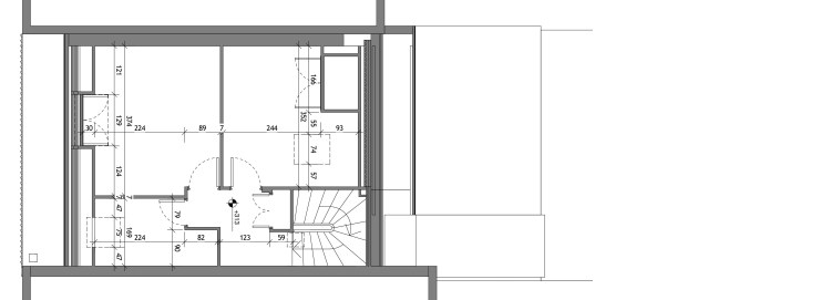
état initial – plan étage

état initial – rdc (côté rue Pierre Mendès France)

état initial – rdc (côté rue Denis Diderot)

étage initial – étage (côté rue Denis Diderot)

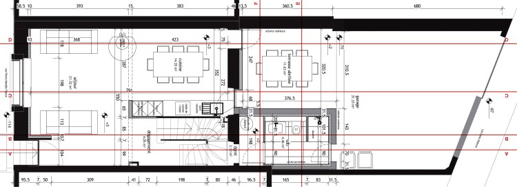
projet – plan rdc

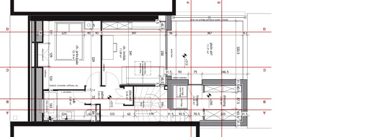
projet – plan étage

état initial

projet

projet – coupe axonométrique DD

projet – coupe axonométrique CC

projet – coupe axonométrique BB

projet – coupe axonométrique AA

projet – rdc – vue entrée et séjour

projet – rdc – vue cuisine et séjour

projet – rdc – vue cuisine

projet – rdc – vue garage

projet – rdc – vue sdb

projet – rdc – vue sdb

projet – étage – vue chambre principale (côté rue)

projet – étage – vue sdb

projet – étage – vue chambre invités (côté terrasse)

projet – étage – vue terrasse