extension d’une exploitation agricole à St-Marc (44)
maîtrise d’ouvrage: SCEA ENTRE CHÈVRES ET CHOUX
maîtrise d’œuvre: DONNET TRESSE architectes (DTLAB)
/ études, pc: 2018
/ 1 250 m²
/ 200 000 € (en autoconstruction)
Entre chèvres et choux, c’est en 2018:
– du maraîchage biologique (en plein champ et en tunnel): production de légumes diversifiés et quelques petits fruits,
– un point de vente directe complété par d’autres produits alimentaires bio de producteurs locaux,
– et des animations en extérieur (théâtre de verdure).
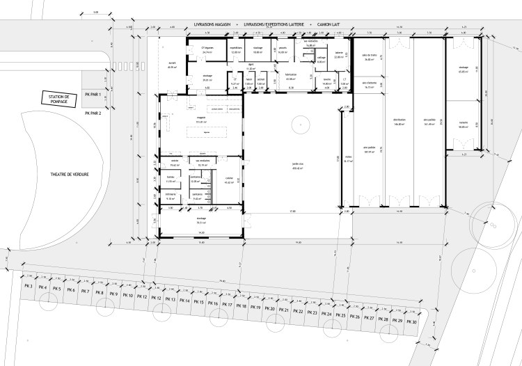
Le projet comprend:
– une chèvrerie (560 m²),
– un laboratoire de transformation laitière (206 m²),
– un magasin (150 m²),
– des locaux pour les personnes travaillant à la ferme (121.5 m²): bureau, salle de repos, vestiaires, sanitaires,
– ainsi que des locaux de stockage (maraîchage 149.5 m², chèvrerie 69 m²).
L’offre d’animations extérieures sera complétée par un jardin depuis lequel les visiteurs pourront observer les chevrettes ainsi que le processus de transformation laitière.
–

à gauche: zone utilisable pour le projet; à droite: théâtre de verdure et petit plan d’eau

état initial – plan masse

projet – plan masse

état initial – coupe

projet – coupe

projet – vue axonométrique

projet – plan