rénovation du rdc d’une maison à La Baule (44)
maîtrise d’ouvrage: privée
maîtrise d’œuvre: DONNET TRESSE architectes (DTLAB)
/ études: 2017-2018
/ rdc: 70 m²
–

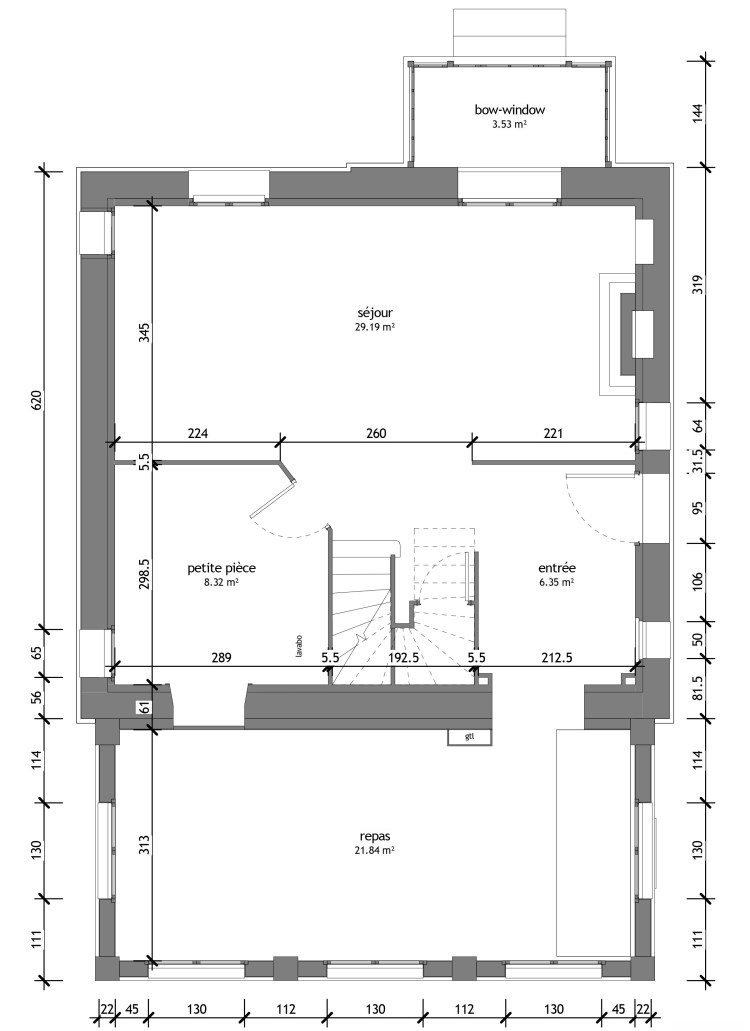
rdc / plan existant

rdc bas / plan existant

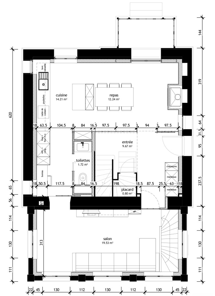
rdc / projet

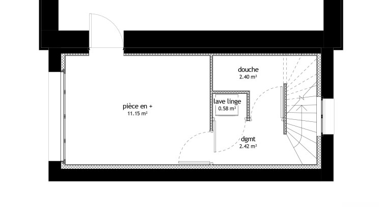
rdc bas / projet

rdc / entrée, repas

rdc / entrée, repas, cuisine

rdc / repas, cuisine, coin bureau, (salon)

rdc / coin bureau, cuisine

rdc / coin bureau, salon

rdc / salon, entrée

rdc / entrée, salon

rdc / entrée

rdc / entrée