DT191 SPN

architecture / urbanisme, logements

mini extension d’une maison à St-Nazaire (44)

maîtrise d’ouvrage: privée
maîtrise d’œuvre: DONNET TRESSE architectes (DTLAB)

/ études: 2017-2018

axonométrie côté jardin

vue extension depuis jardin

vue extension depuis jardin

r+1 / plan existant

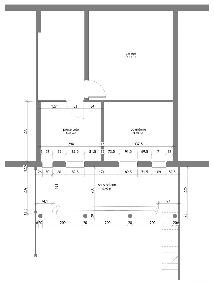
rdc / plan existant

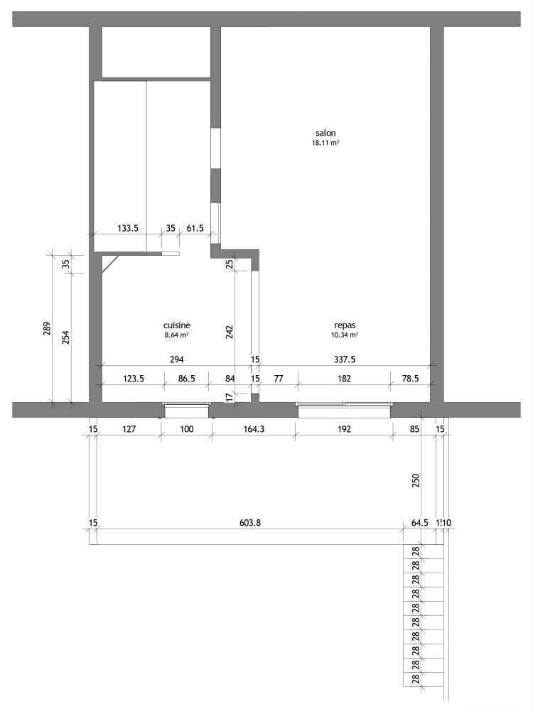
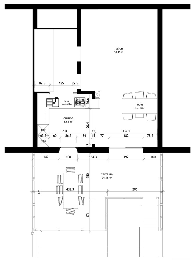
r+1 / plan projet

rdc / plan projet

r+1 / vue cuisine depuis palier

r+1 / vue salle à manger

r+1 / vue cuisine

r+1 / vue cuisine

rdc / vue bureau/bliblio

rdc / vue petit salon

rdc / vue petit salon