rénovation d’un appartement à Nantes (44)
maîtrise d’ouvrage: privée
maîtrise d’œuvre: DONNET TRESSE architectes (DTLAB)
/ projet livré!
/ études, dce, chantier: 2010-2011
/ 67 m²
/ 57 000 €
chantier (2011):
– SMI* (démolition) / 44330 Le Pallet
– menuiserie Robin* (menuiseries, placo, mobilier) / 44450 La Chapelle Basse Mer
– Divatelec * (électricité) / 44450 Barbechat
– Erecca (plomberie, sanitaires) / 44000 Nantes
– TS44* (carrelage) / 44300 Nantes
– ADECO (résine sol) / 44600 Saint-Nazaire
– SRPD* (peinture) / 44690 Maisdon sur Sèvre
–

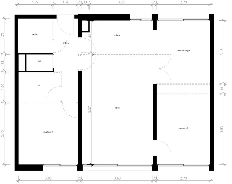
plan existant (démolitions en pointillés)

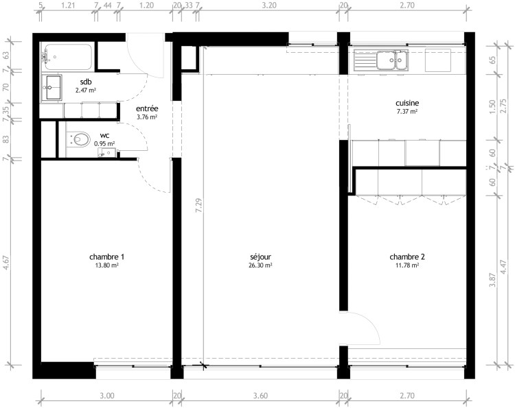
plan projet

cuisine

cuisine (vers séjour)

séjour (vers cuisine)

séjour

chambre
–
* entreprises sélectionnées via T. Willemse / 44470 Carquefou