transformation du rdc d’un immeuble en restaurant
et aménagement des combles en appartement à St-Nazaire (44)
maîtrise d’ouvrage: privée
maîtrise d’œuvre: DONNET TRESSE architectes (DTLAB)
/ études: 2015
–
transformation d’un rez-de-chaussée en restaurant

rdc / existant

rdc / projet

la salle principale*

le bar puis la salle principale*

le bar*

le restaurant depuis la salle côté cour*
–
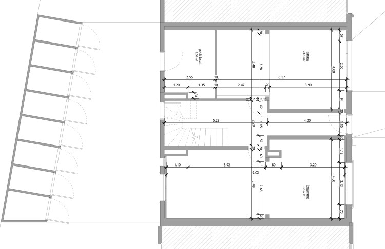
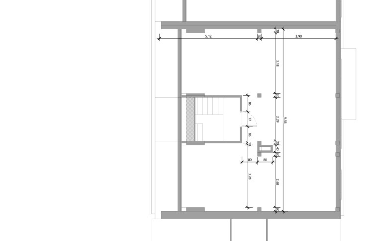
aménagement des combles en appartement

combles / existant

combles / projet
–
côté boulevard de la Renaissance

axonométrie / existant

axonométrie / projet
–
côté cour

axonométrie / existant

axonométrie / projet
–
* perspectives O. Donnet
grès cérame: Artens / Gatsby / carreaux noirs et/ou blancs / unis + 10 motifs différents
meubles bar: Ikea / éléments de cuisine Metod / structures effet brun noir + façades Tingsryd effet brun noir + plans de travail Ekbacken brun noir
6 tables 4 personnes: Ikea / Lerhamn / plateau bois + structure blanche
chaises jaunes: Ikea / 5 Janinge + 4 Reidar
chaises blanches: Ikea / 3 Janinge + 3 Reidar
chaises noires: Ikea / 3 Reidar + 3 Idolf + 3 PS 2012
tabourets bois: Ikea / 5 Bosse
étagères et « tablettes attente »: Ikea / Stenstorp
plafonniers et appliques: Ikea / Vitemolla