logements, fonderie d’art et commerces à St-Denis (93)
maîtrise d’ouvrage: privée
maîtrise d’œuvre: DONNET TRESSE architectes (DTLAB)
/ projet livré!
/ études, pc, dce: 2007-2009
/ chantier: 2011, 2015-2016
/ 770 m²
/ 1 160 000 € HT (hors injections)
chantier phase 1 (2011):
– suivi chantier avec COTEC
– entreprise générale SBG Lutèce / 91140 Villebon-sur-Yvette
chantier phase 2 (2015-2016):
– suivi de chantier avec BECK / 94200 Ivry-sur-Seine
– entreprise générale MG / 93300 Aubervilliers
–
occupation mixte
Il s’agit ici d’une réadaptation du contenu-contenant de la parcelle au nouveau devenir de ce quartier en pleine mutation.
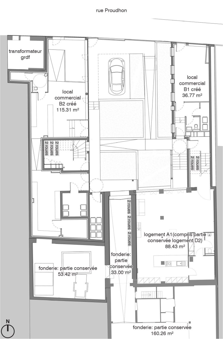
L’occupation initiale était mixte: une fonderie d’art et 4 logements cohabitaient et s’étaient étalés au fil des années. Afin de mieux cerner les besoins et les contraintes de chacun, un état des lieux des usages et des bâtiments a été effectué. C’est sur cette base, et avec l’obligation de maintenir à la fois la fonderie en activité et les occupants sur place que le projet s’est fabriqué.
Deux phases successives de démolition-reconstruction seront nécessaires.
L’organisation des bâtiments autour de la cour a été maintenue.
Au sud, le bâtiment principal ainsi que celui en fond de parcelle (non visible depuis la rue) ont été conservés.
A l’est, les remises le long de la limite séparative ont été remplacées par un bâtiment r+2.
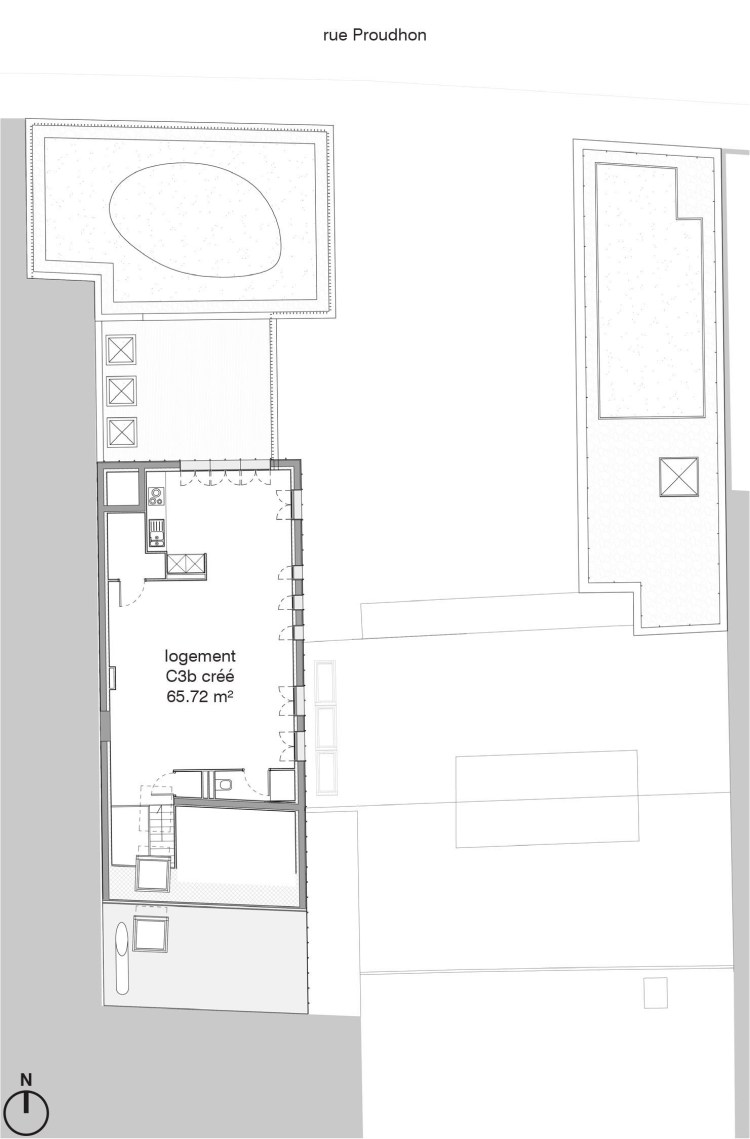
A l’ouest, les constructions adossées aux voisins ont laissé place à un petit collectif r+3.
Deux commerces au rdc participent au nouveau dynamisme de la rue.
Auparavant, le passant ne profitait du dégage ment visuel de la cour que lorsque le portail était ouvert. Une grille remplace désormais murs et portail opaques, afin de faire bénéficier cette respiration à tous et à toute heure.
–

existant en 2007

perspective du projet (permis de construire)
–

le projet (phase 1) depuis la rue Jamin

le projet (phase 1) depuis la rue Proudhon

bâtiment est (phase 1)

bâtiment est (phase 1)

parties communes (bâtiment est)

intérieur d’un appartement (bâtiment est)

intérieur d’un appartement (bâtiment est)
–

le projet depuis la rue Jamin

le projet depuis la rue Proudhon

la cour

bâtiment ouest

bâtiment ouest

bâtiment ouest

la cour depuis un balcon du bâtiment ouest

parties communes (bâtiment ouest)

parties communes (bâtiment ouest)

intérieur d’un appartement (bâtiment ouest)

intérieur d’un appartement (bâtiment ouest)
–

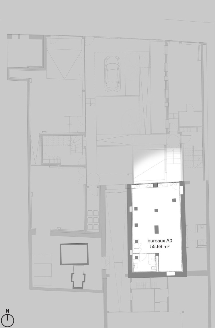
plan r-1

plan rdc

plan r+1

plan r+2

plan r+3
–

la Fonderie d’Art de la Plaine