ondine lux, lux+, delux, delux+
conception, modélisation: C. Tresse
rendus: O. Donnet
/ concours d’idées Maisons Pierre: 2002
–
Vaste terrain au milieu des champs ou bande étroite en zone urbaine,
ce modèle de maisons individuelles est adaptable à un grand nombre de situations:
– son implantation est possible en limite(s) séparative(s),
– les ouvertures latérales et zénithales sont positionnées pour permettre un ensoleillement généreux, et ce, quelque soit l’orientation,
– le bardage extérieur, en Eternit coloronde FR natura, peut être décliné en 10 coloris.
Les maisons comprennent un séjour double, une cuisine, une salle de bains, un garage
et selon les versions, 2, 3 ou 4 chambres:
– ondine lux (96,8m²)
rdc: entrée, séjour double, cuisine, cellier, toilettes (+ garage de 20m²)
étage: palier, 3 chambres, salle de bains
– ondine lux+ (97,3m²)
rdc: entrée, séjour double, cuisine, cellier, toilettes (+ garage de 20m²)
étage: palier/mezzanine, 2 chambres, salle de bains
– ondine delux (115m²)
rdc: entrée, séjour double, cuisine, cellier, toilettes (+ garage de 20m²)
étage: palier, 4 chambres, salle de bains
– ondine delux+ (110,7m²)
rdc: entrée, séjour double, cuisine, cellier, toilettes (+ garage de 20m²)
étage: palier/mezzanine, 3 chambres, salle de bains
–

nuancier Eternit coloronde FR natura – online lux, ondine lux+, ondine delux, ondine delux+

façade rue – ondine lux, ondine lux+

façade jardin – ondine lux, ondine lux+

coupe de principe – ondine lux

vue intérieure – ondine lux

vue intérieure – ondine lux

coupe de principe – ondine lux+

vue intérieure – ondine lux+

vue intérieure – ondine lux+

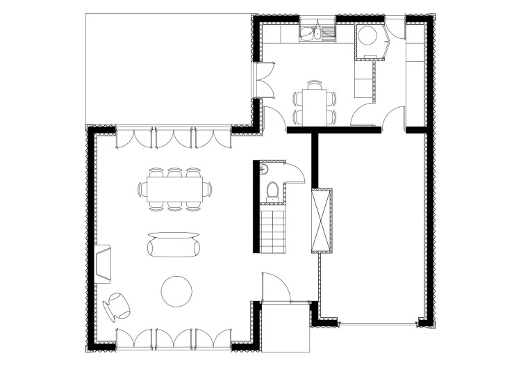
rdc ondine lux, ondine lux+: entrée, séjour double, cuisine, cellier, toilettes (+ garage de 20m²)

étage ondine lux: palier, 3 chambres, salle de bains

étage ondine lux+: palier/mezzanine, 2 chambres, salle de bains

façade rue ondine delux, ondine delux+

façade jardin ondine delux, ondine delux+

coupe de principe – ondine delux

vue intérieure – ondine delux

coupe de principe – ondine delux+

coupe de principe – ondine delux+

vue intérieure – ondine delux+

vue intérieure – ondine delux+

vue intérieure – ondine delux+

rdc ondine delux, ondine delux+: entrée, séjour double, cuisine, cellier, toilettes (+ garage de 20m²)

étage ondine delux: palier, 4 chambres, salle de bains

étage ondine delux+: palier/mezzanine, 3 chambres, salle de bains