transformation d’un appartement en bureaux et logement à Paris (75)
maîtrise d’ouvrage: privée
maîtrise d’œuvre: DONNET TRESSE architectes (DTLAB)
/ projet livré!
/ études, dce, chantier: 2008
/ 100 m²
/ 40 000 €
–

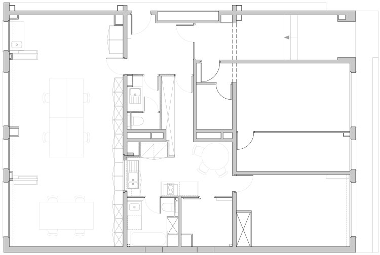
plan projet

pendant les travaux

côté bureaux

côté bureaux

côté bureaux

côté bureaux

côté bureaux

côté logement

côté logement: photo (O. Donnet) utilisée comme papier peint