pépinière d’entreprises à Nantes (44)
maîtrise d’ouvrage: privée
maîtrise d’œuvre: DONNET TRESSE architectes (DTLAB)
/ projet livré!
/ études, pc, dce, chantier: 2008-2009
/ 318 m² shon / 240 m² su
/ 93 400 €
chantier (2009):
– menuiserie Robin* (démolition, maçonnerie, menuiseries, placo, mobilier) / 44450 La Chapelle Basse Mer
– Erecca (chauffage, sanitaires) / 44000 Nantes
– SRPD* (peinture) / 44690 Maisdon sur Sèvre
– Electrovia* (électricité) / 44230 Saint Sébastien sur Loire
–
rdc

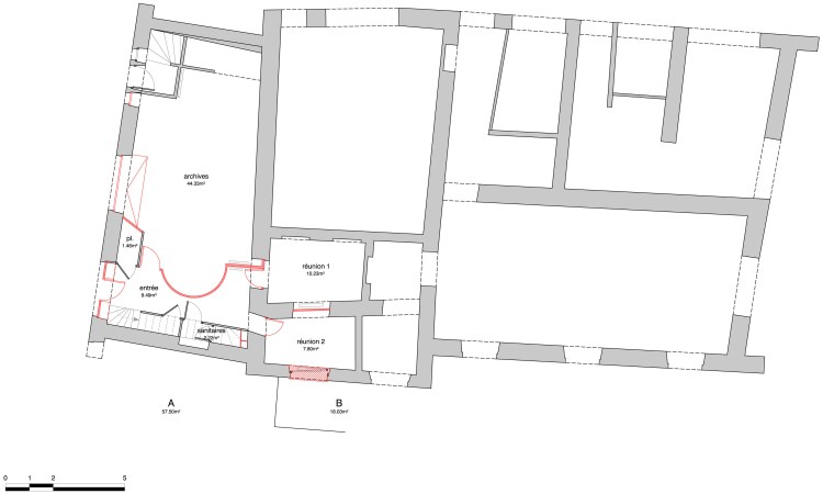
rdc / démolitions (en rouge)

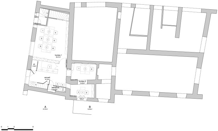
rdc / projet

rdc / axonométrie du projet

rdc / accueil (vers bureau 2)

rdc / accueil (vers bureau 1)

rdc / bureau 1

rdc / bureau 1 (vers accueil)
–
r+1

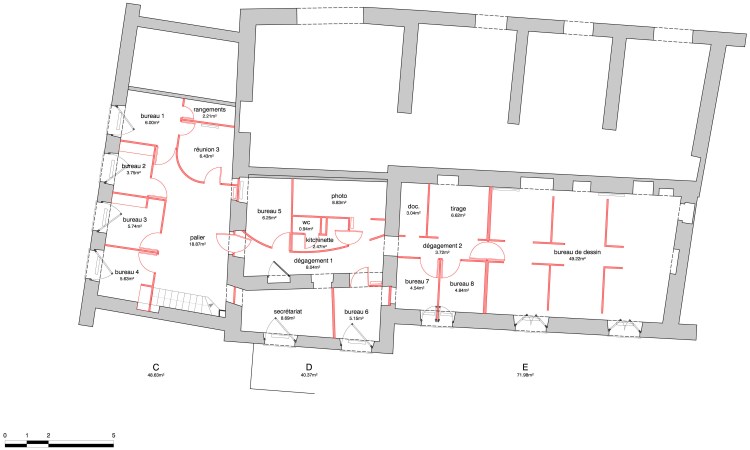
r+1 / démolitions (en rouge)

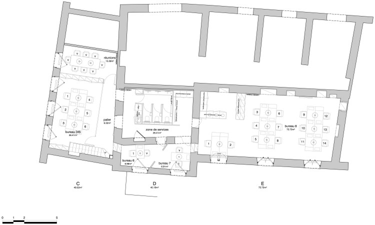
r+1 / projet

r+1 / axonométrie du projet

r+1 / palier (vers bureau 345 et salle de réunions)

r+1 / zone de services

r+1 / bureau 7 (vers bureau 6)

r+1 / bureau 8
–
* entreprises sélectionnées via T. Willemse / 44470 Carquefou