rénovation d’un appartement à Paris (75)
maîtrise d’ouvrage: privée
maîtrise d’œuvre: DONNET TRESSE architectes (DTLAB)
/ projet livré!
/ études, dce: 2009
/ 34 m²
/ 40 000 €
chantier (2019):
– Costa (menuiseries, placo, carrelage, peinture)
– Carvalho (électricité) / 77310 Saint Fargeau Ponthierry
– Gomes (plomberie, sanitaires)
–

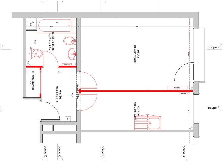
plan existant (démolitions en rouge)

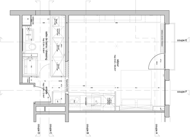
plan projet

vue a / pièce principale avec le lit replié

vue a / pièce principale avec le lit ouvert

vue a / coin repas

vue b / pièce principale avec le lit replié

vue b / pièce principale avec le lit ouvert

vue b / coin salon

salle de bains et dressing