rénovation d’un appartement à Asnières-sur-Seine (92)
maîtrise d’ouvrage: privée
maîtrise d’œuvre: DONNET TRESSE architectes (DTLAB)
/ projet livré!
/ études, dce: 2011
/ 88 m²
/ 60 000 €
chantier (2011):
– groupe GPRD (groupement d’entreprises) / 92100 Boulogne-Billancourt
–

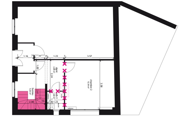
r+1 / plan existant (démolitions en magenta)

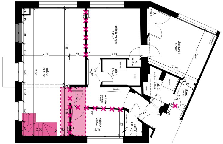
rdc / plan existant (démolitions en magenta)

r+1 / plan projet

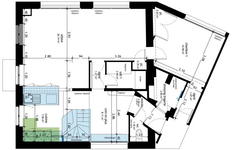
rdc / plan projet

r+1 / depuis l’entrée: coin des enfants, escalier, cuisine (et séjour)

r+1 / de gauche à droite: entrée, coin des enfants, escalier, cuisine

r+1 / de gauche à droite: séjour, cuisine, coin des enfants (et entrée)

r+1 / de gauche à droite: séjour, cuisine

rdc / une salle de douche se loge sous l’escalier-bibliothèque