transformation d’une grange en gîte rural à Treize-Vents (85)
maîtrise d’ouvrage: privée
maîtrise d’œuvre: DONNET TRESSE architectes (DTLAB)
/ projet livré!
/ études, pc, dce: 2010-2011
/ 75 m²
/ 85 000 €
chantier (2013):
– suivi de chantier: C. Leroux architecte (ET ALORS, collectif FARO)
– Y. Coutant (maçonnerie) / 79700 Mauléon
– HCL Habitat (menuiseries extérieures) / 85500 Les Herbiers
– Menuiserie de la Sèvre (menuiseries intérieures, placo) / 85290 Saint Laurent sur Sèvre
– Bregeon Maudet (électricité, plomberie) / 85500 Les Herbiers
– Pineau (électricité, plomberie) / 85610 Cugand
– La Forge des Collines (artisan forgeron) / 85500 Les Herbiers
– Chevalier / 85500 Les Herbiers
– D. Martinet (peinture) / 85290 Mortagne sur Sèvre
–
existant
Tournant le dos à la rue, cette ancienne grange un peu bourrue méritait une intervention délicate.
Les quatre murs en pierres apparentes, la toiture à deux pentes et ses rares ouvertures lui donnaient un aspect monolithique hors du temps, et délimitaient un beau volume intérieur pouvant accueillir deux niveaux.
Chacun des trois percements avait un caractère différent:
– l’entrée principale (dotée d’une grand porte coulissante en bois) s’ouvrait généreusement sur un paysage champêtre,
– une petite porte donnait accès à un jardin clos et privatif,
– une fenêtre (positionnée à 2.5 m du sol environ) laissait entrevoir le ciel.

l’ancienne grange avant les travaux
–
comme un bernard l’hermite
Il s’agissait de transformer cette grange en un gîte confortable pour quatre personnes.
Le vieux bâtiment a été conservé quasiment tel quel:
– l’isolation thermique a été faite par l’intérieur, puis les murs ont été doublés en osb et les sous-faces du toit en placo,
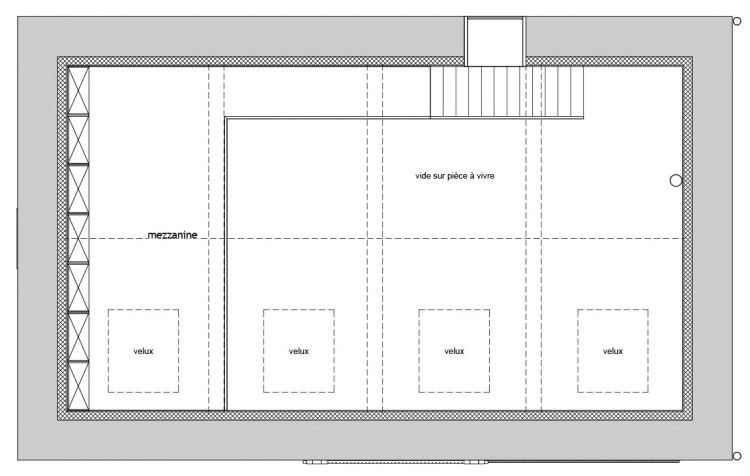
– quatre vélux et onze points lumineux sont venus compléter l’apport de lumière,
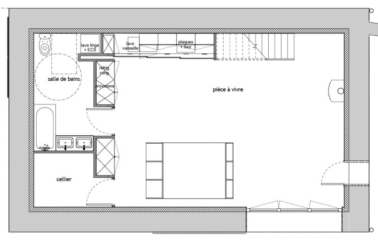
– le volume intérieur a pu être préservé grâce à la création d’une mezzanine logeant à la fois deux lits gigognes et un coin tv au-dessus, et la salle de bains et un cellier au-dessous; la cuisine se nichant quant à elle sous l’escalier,
– table et chaises ont pu ainsi prendre aisément place face au poêle à granulés de bois et au paysage champêtre.
Le client tenait à ce que le projet s’inspire du titre d’un auteur de la fin du XVIIIème siècle, Xavier de Maitre: «Voyage autour de ma chambre». Un volume roulant a donc été conçu afin d’allier les fonctions de lit, penderie et bibliothèque; les façades pouvant être refermées par un rideau afin de faire apparaître – ou non – les dites fonctions.

rdc / projet

r+1 / projet

l’ancienne grange après les travaux

la table roulante, dont le piétement est un ancien socle de machine agricole servant à couper les betteraves, rappelle la destination première du lieu

le volume intérieur a pu être préservé grâce à la création d’une mezzanine, intégrant la salle de bains et un cellier

la cuisine est nichée, quant à elle, sous l’escalier

le volume roulant et la mezzanine offrent chacun le couchage pour deux personnes
–
Vous pouvez réserver une ou deux nuits à Eulalie en cliquant ici.